Leave a Message

Thank you for your message. We will be in touch with you shortly.

155 Sproat Avenue
155 Sproat Avenue
155 Sproat Avenue
155 Sproat Avenue
SEE ALL PHOTOS
155 Sproat Avenue
155 Sproat Avenue
155 Sproat Avenue
155 Sproat Avenue
Disclaimer: All information deemed reliable but not guaranteed and should be independently verified. All properties are subject to prior sale, change or withdrawal. Neither listing broker(s) nor Brian Teyssier shall be responsible for any typographical errors, misinformation, misprints and shall be held totally harmless.   Courtesy of  RE/MAX REAL ESTATE SOLUTIONS
Pending

155 Sproat Avenue

155 Sproat Avenue, Economy, PA 15042

$485,000
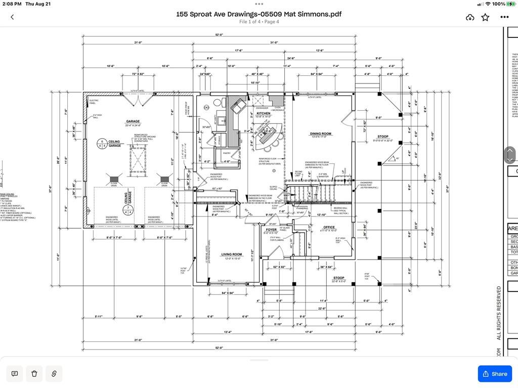
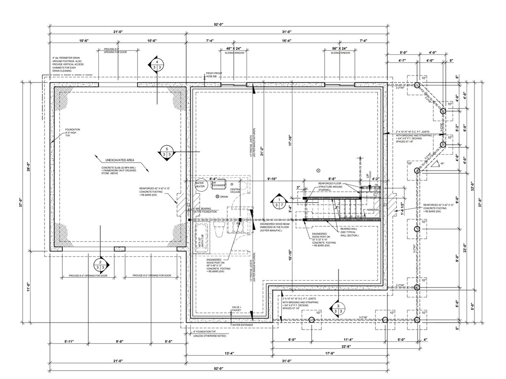
FREEDOM(typically)IS NOT FREE but in the case of making ALL of your finish selections on this brand new custom home located in the Freedom Area S.D., it IS! As of September 2025, 155 Sproat Ave is in it's mechanics stage which is right before the drywall stage. You will meet with the GC &, within the developers budget, select your cabinets, door pulls, lighting & plumbing fixtures, paint, countertops, flooring & more! No walls will/can be moved at this point. You are going to really appreciate the size of the 3 finished floors(over 3,000 sqft), 2 car attached garage, FINISHED BASEMENT, & generous back yard. Only 11 minutes from Ohio River Blvd(rte 65). Physical house plans have been tweaked from the original floor plans to add a HUGE bonus room over the garage & move the laundry from upstairs to the first floor when you fiirst come in from garage.

4
beds

4
baths

3,334 Sq.Ft. LIVING AREA

0.46 Acres lot

Brian Teyssier

Brian Teyssier

Features & Amenities

Interior

  • total bedrooms4
  • Total bathrooms4
  • full bathrooms3
  • half bathroom1

Area & Lot

  • Status Pending
  • Living Area3,334 Sq.Ft.
  • Total Area3,334 Sq.Ft.
  • Lot Area0.46 Acres
  • MLS® ID1717699
  • TypeResidential
  • YEAR BUILT2025
  • Architecture StylesTwo Story
  • School DistrictAmbridge

Exterior

  • STORIES2
  • water SourcePublic
  • PoolNone
  • roofAsphalt
  • parkingAttached, Garage
  • HEAT TYPEForced Air, Gas
  • AIR CONDITIONINGCentral Air, Electric
  • sewerPublic Sewer

Financial

  • Sales Price$485,000
  • Real Estate Tax $594/yr
image

Schedule a Showing

I would love to show you this beautiful property. Please select your preferred date and time below. I will be in touch shortly to confirm your appointment.

Schedule a Showing

I would love to show you this beautiful property. Please select your preferred date and time below. I will be in touch shortly to confirm your appointment.

Thank you for your interest in 155 Sproat Avenue, Economy, PA 15042. We are reviewing your request and will be in touch shortly!

Mortgage Calculator

Estimate your monthly mortgage payment, including the principal and interest, property taxes, and HOA. Adjust the values to generate a more accurate rate.
All estimates are provided for informational purposes only. Actual amounts may vary.
$0,000 Your Payment 20 15 65
$0,000 Your Payment

Work With Brian

Follow Me on Instagram